Galeri
Fakültemizin bölümlerine ait ayrı ayrı öğrenci projelerini alt akordiyonlarda bulabilirsiniz.
(Not: aşağıdaki görseller karışık olarak konulmuştur)
Mimarlık
4. SINIF
MIM405-MİM402 MEZUNİYET PROJESİ
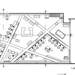
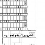
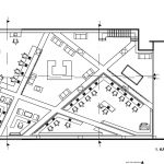
2019-2020 Bahar Dönemi, YDÜ Mimarlık Fakültesi, Mimarlık Bölümü, MIM405-MİM402 MEZUNİYET PROJESİ dersi Prof.Harun ÖZER Yrd. Doç. Dr. Çiğdem ÇAĞNAN M.A. Ümran DUMAN ve B.A. Açelya SOYKAN tarafından yürütülmüştür. Lefkoşa Uluslararası Fuarı ve fuar alanının yetersiz kalması sorun olarak görülmüştür. Gelişen KKTC devletinin başkenti Lefkoşa’da uluslararası nitelikte bir sergileme ve kültür merkezine gereksinim duyulduğu düşünülmüştür. Bu gereksinimi karşılamak için, seçilen kentsel alanda, binalar kompleksinin tasarımı Mezuniyet Projesine konu olarak seçilmiştir. Projede ilk olarak verilen arazinin kentle bütünleşmesi için girişler tayin edilmesi istenmiştir. Bu proje programına fuar yönetim binası, kongre merkezi ve kongre binası, kent sanat galerisi, seyir kulesi, sanatçılar çarşısı, yerel yemek restoranları, kapalı ve açık sergileme alanları, depolar, peyzaj düzenlemesi, endemik bitkiler sergileme alanı, seralar, yaya ve bisiklet yolları, dinlenme alanları, çay bahçeleri, servis alanları ve binaları dâhil edilmiştir. Ders kapsamında dört yıllık lisans düzeyinde mimari bilim ve sanatına ait öğretilerin belirli bir kentsel alanda, verilen bina programlarına dayalı ön projelerinin ve raporlarının hazırlanması çalışmasını yapmak amaçlanmıştır. Öğrenciler tarafından edinilen bilgilerin proje olarak uygulanmasındaki tasarım başarısı ölçülmüş ve mesleği yapabilir bilgiye ulaştığı tespit edilen konuyla ilgili en iyi üç farklı çözüm yaklaşımı sizlere sunulmuştur.
1. SINIF
Mim 202 Selin Gizli Projesi
Batuhan Özgün 2020-21 Fall - ARC 201
2020-21 Fall - ARC 201 -Batuhan Özgün
Taha Alqoran 2020-21 Fall - ARC 201
https://drive.google.com/file/d/1aLjkut4wjlQ1sfPm81hNNsTUD6sSi8fH/view
İç Mimarlık
İç Mimarlık Bölümü
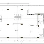
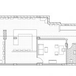
INAR 402 Mezuniyet Projesi-SAĞLIK-GÜZELLİK MERKEZİ
INAR 402 mezuniyet projesi Lefkoşa'da mevcut olan Miracle Hastanesini güzellik ve sağlık merkezi olarak yeniden tasarlamasını içermektedir. öğrenciler kendilerinin belirlemiş olduğu konsept çerçevesinde mekanın fonksiyonlarını da en iyi şekilde çözümleyerek finalize etmiştir. bu doğrultuda, her mekan için bir malzeme paftası hazırlayarak üç boyutlu görsellerle sunumlarını gerçekleştirmişlerdir.
1.PROJE-BERKAY USLUER
3. PROJE -ZEYNEP GÖKÇE
_____________________________________________________________________________________________________________________________________________
INAR 401 - İKİ TOPLUMLU PROJE VE AKTİVİTE BİNASI
1.PROJE-TAMER KANALICI
2.PROJE-BATUHAN TEZCAN
3.PROJE-ROZERİN PELDA YURTDAŞ
INAR 302 - Şehir Kulübü Tasarım
INAR-IAR 302 Projesinde öğrenciler Lefkoşa Dereboyu Bölgesinde bulunan iki katlı, beton strüktürü ve içte galeri kapalı avlusu olan binaya kendi belirledikleri marka ve temada şehir kulübü binası tasarlamıştır. Projede öğrenciler markanın kurumsal kimliği ile kulüp kültürünü birleştirmişler, çok fonksiyonlu, çevresine duyarlı, üyeleri için keyif verici olabilecek alternatif tasarım fikirleri geliştirmişlerdir. Eğlence ve lüks kavramlarını birleştiren projede oldukça verimli bir dönem yaşanmıştır.
1-PROJE-Mahmut Gururoğlu
2. PROJE-M.Alican Yılgın
3. PROJE-A.Samet Güler
_________________________________________________________________________________________________________________________________________________
INAR-IAR 301
INAR-IAR 301 projesinde öğrencilere Lefkoşa’daki Peyak ambarlarından biri verilmiştir. Verilen bu ambara kendilerinin belirledikleri bir konsept çerçevesinde en fazla iki kişinin içerisinde yaşayacağı bir loft tasarlamaları istenmiştir. Proje kapsamında öğrenciler kullanılmayan boş bir ambarı nasıl içerisine bir de sende kat çözerek yaşayacak olanların ihtiyaçlarını rahatça karşılayabileceği, fonksiyonlu bir mekana dönüştürebileceklerini sundukları fikirlerle geliştirdiler. Eski, kullanılmayanın yeniden kullanılabilir hale getirildiğini öğretmek amaçlı çalışılan projede verimli ve faydalı bir dönem yaşanmıştır.
1. PROJE-SUMAYA BASHİR
2. PROJE-SUMAYAH ALI
3-PROJE-OMAR ALOWAISHI
_______________________________________________________________________________________________________________________________________________
INAR/IAR 201
İç Mimarlık Bölümü, Inar/Iar 201 desinin 2019-20 bahar dönemi proje konusu bir mağaza tasarımı idi. Öğrencilere işlek bir cadde üstünde yer alan bir boş dükkan verilmiştir ve yapacakları ayrıntılı araştırma sonucu seçecekleri bir ayakkabı veya çanta markasını yansıtacakları bir tasarım istenmiştir. Bu proje öğrencilere vitrin ve dükkanın cephesini tasarlama imknaı da vermiştir. Seçtikleri markanın renklerini ve logosunu da kullanarak mekanda sergileme ve depolamayı düşündükleri çözümler üreterek, kasa bölümü küçük bir ofis alanı ve personelin ihtiyaçlarını da karşılamaları beklenmiştir.
Tasarımı ile sınıfta birinciliği ve ikinciliği kazanan projeler daha spor bir marka seçmiş ve ona göre mekanlarını oluşturmuşlardır, üçüncü proje dah local bir Türk markasını seçmiş ve onun çizgisini çalışmasına ade bir dil ile taşımıştır.
INAR/IAR 201
1.PROJE-Heba Mones Gharaibeh
2.PROJE-Alia Raed
3.PROJE-Sercan Uzunoğlunun
_________________________________________________________________________________________________________________
IAR-ICM 102 Temel Tasarım II-INAR 102 Introduction to Interior Design
Üç boyutlu temel bir kütleden, küçük ve kompakt çözümler içeren iki kişilik bir ev tasarlamaları istendi. Bu yapının iç mekan çözümleri, çok fonksiyonlu, temel ihtiyaçları karşılayabilecek tasarımlardan oluşturulacaktı. Bunun yanı sıra yakın çevresi, yapının çevreyle olan ilişkisi de dikkate alınarak tasarlanacaktı. Temelde küp olarak verilen form, eklemeler ve çıkarmalarla farklı formların oluşturulduğu başarılı projeler üretildiği görülmüştür.
1. PROJE-Heba Mones Gharaibeh
2. PROJE-Alia Raed
3.PROJE-Sercan Uzunoğlu
















































































































































































































































































































